WHO WE ARE/ CHI SIAMO

ALL ARCH | ARCHITETTI
ALL ARCH | ARCHITETTI
TORNA A
CONTATTI
Arch. Sara Candido
Arch. Luca Cassina
Arch. Sara Candido
Arch. Luca Cassina
ALL ARCH | ARCHITETTI è uno studio di architettura con sede a Torino nato dalla collaborazione tra i due architetti Sara Candido e Luca Cassina che, unendo le loro capacità ed esperienze, offrono servizi di progettazione di ristrutturazioni e nuove costruzioni, gestione di pratiche edilizie e catastali e consulenze tecniche a privati e aziende.
011 2070014
2025 © All rights reserved - Arch. Sara Candido | P.IVA 12650850014 - Arch. Luca Cassina | P.IVA 12650860013.
Lo studio ALL ARCH | Architetti affianca clienti privati, professionisti e agenzie immobiliari nell’analisi, aggiornamento e regolarizzazione della situazione catastale di immobili civili, commerciali e industriali.
La corretta gestione delle pratiche catastali è fondamentale per evitare incongruenze, problemi legali e ritardi nelle compravendite immobiliari.
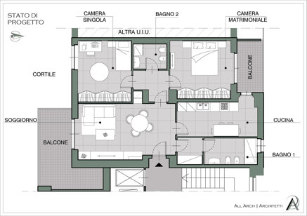
Ogni immobile deve essere correttamente censito, sia in termini identificativi (proprietà, foglio, particella, subalterno) che descrittivi (superficie, destinazione, planimetria).
Ecco i principali documenti catastali:
Cos'è il CATASTO?
Il catasto è l’archivio ufficiale che raccoglie i dati identificativi e tecnici degli immobili.
Il nostro studio tecnico si occupa di:
Ogni servizio viene svolto con rapidità, trasparenza e nel rispetto delle normative vigenti.
03
01
RILIEVO DELL'IMMOBILE
REDAZIONE DELLA PRATICA
Predisposizione degli elaborati (modello DOCFA, grafici aggiornati, relazioni tecniche).
Verifica sul posto della planimetria, misurazioni e confronto con lo stato di fatto.
02
04
INVIO TELEMATICO
ANALISI DOCUMENTALE
Presentazione presso l’Agenzia delle Entrate – Catasto Fabbricati e gestione dell’intero iter.
Verifica visure, planimetrie esistenti e dati presenti in banca dati.
Le pratiche catastali sono obbligatorie o fortemente consigliate
nei seguenti casi:
Hai bisogno di una pratica catastale a Torino e provincia
Contattaci!